Наши дома не требуют подключения газа для отопления — это не окупится
Подпишитесь на нас в Telegram Самая актуальная информация, новости, акции и новые проекты
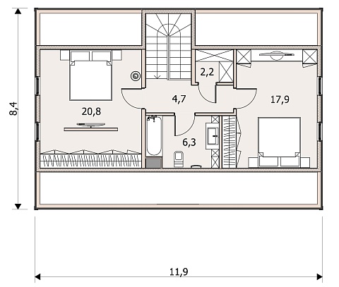
Nordic 157
Семейная ипотека от 6%
На канале делимся опытом, технологиями и живыми историями домов Nordic
Опыт и надежность
Большой опыт заключения сделок с использованием счетов эскроу - знаем все тонкости и требования банков
Наличие проектного финансирования - построим ваш дом качественно и в срок
Юридическая безопасность
Подробная проверка ЕГРН и ГПЗУ кадастровым инженером-юристом
Гарантия безопасности сделки и регистрации будущего дома
Удобство и простота
Обеспечиваем полное сопровождение клиентов от начала строительства до ввода дома в эксплуатацию
Экономия средств
Подберем выгодные банковские условия — низкие ставки без субсидирования и оптимальные платежи
|
Комплектация
Без заполнения форм и передачи контактных данных
|
Стандарт
Цена в ипотеку: 9 981 000 ₽
Цена за свои: 9 981 000 ₽
Предложение до 25.04.2026
|
Стандарт +
Цена по запросу
|
Все включено
Цена по запросу
|
|---|---|---|---|
| Посмотреть всю комплектацию | Посмотреть всю комплектацию | ||
| Фундамент | |||
| Стены Prefab полного заводского изготовления | |||
| Кровля металлочерепица | |||
| Окна, двери | |||
| Внешняя отделка дома | |||
| Оперативная служба сервиса в гарантийный и постгарантийный период | |||
| Каркас внутренних перегородок | |||
| Ограждения, террасная доска на крыльце и террасе | |||
| Отделка цоколя | |||
| Электрика «под ключ» | |||
| Инженерные системы «под ключ» (котел, бойлер, радиаторы, вентиляция, ХВС, ГВС) | |||
| Отделка стен гипсокартоном | |||
| Система защиты от протечек | |||
| Проверка дома независимой экспертизой с помощью Аэродвери |
Срок по Договору составляет 2-6 месяцев с учетом фундамента и запуска инженерных систем.
10 лет
сроки
полного цикла
надзор
Состав проекта:
- Общие данные по рабочим чертежам;
- Трёхмерные виды, фасады, разрезы;
- Планы этажей, фундамента и экспликация помещений;
- План и развёртка кровли, схема водосточной системы и снегозадержания;
- Ведомость оконных блоков и наружных дверей;
- Схемы световых и розеточных сетей, схема вентиляции;
- Схема размещения междуэтажной лестницы (для двухэтажного дома).
Перевозка монтажного комплекта дома на участок заказчика в пределах Московской области в границах А108. Возможность и условия доставки в другие области, регионы, отдаленные и труднодоступные территории, требуют уточнений у менеджера отдела продаж.
Организация временных жилых и санитарно-гигиенических помещений для рабочих (бытовка, биотуалет, душ) в Московской области. Возможность и условия бытового обеспечения бригады в других регионах, а так же стоимость биотуалета при удалённости обслуживающего его сервиса, требуют уточнения в отделе продаж.
Обустройство открытых площадок для временного размещения строительных материалов и сборных конструкций, их разгрузка и складирование. При необходимости площадки оборудуются навесами для закрытого хранения некоторых групп материалов и оборудования, требующих защиты от атмосферных воздействий.
Организация вывоза строительного мусора на полигоны ТБО с участков, расположенных в Московской области. Возможность проведения работ в других регионах необходимо уточнить в отделе продаж. При удалённости служб, специализирующихся на вывозе мусора, стоимость данной услуги так же требует уточнения.
- Забивные железобетонные сваи 150х150 мм
Доска с оригинальным рисунком изготавливается на собственном предприятии при контроле качества на всех этапах производства. Для её создания используется фреза со специальным профилем, изготовленная на заказ в Швеции. Особая технология окраски с нанесением слоёв разной толщины и по определённым промежуткам времени существенно увеличивает срок службы защитно-декоративного покрытия.
Между фасадной доской и ветрозащитой оборудуется вентиляционный зазор. Вентилируемая воздушная прослойка препятствует переувлажнению стены паром, проникающим из помещений, обеспечивает нормальный влажностный режим стеновой конструкции и формирует благоприятный микроклимат в доме. Снизу вентиляционный зазор защищён сеткой от грызунов.
В качестве ветрозащиты и повышения жёсткости используется GTS-9. Он состоит из гипсового сердечника с гидрофобизаторами, который покрыт специальным картоном повышенной плотности.
Изготовление конструкционной доски «soft angle» осуществляется на собственном производстве в режиме полного цикла, начиная с сушки, заканчивая строганием и запилами. На всех этапах технологического процесса качество изделий контролируется нашими специалистами. Особая форма доски «soft angle», препятствует возгоранию древесины.
Базовый утеплитель – экологически чистая базальтовая плита премиум класса Umatex Termo толщиной 200-250 мм. (в зависимости от комплектации)
Для защиты утеплителя кровли, стен, перекрытий от конденсата и намокания используется пароизоляция 200 мкр. Минимум стыков повышает эффективность парозащиты, обеспечивает высокую герметичность конструкции.
Силовой каркас перекрытия формируется из продольных и поперечных несущих балок специальной формы «soft angle», препятствующей возгоранию древесины и конструкции в целом. Доска изготавливается на нашем предприятии по технологии полного цикла, от камерной сушки пиломатериала, до финишной обработки и запилов. Качество продукции контролируется на всех этапах производства.
Конструктивно «пирог» чернового пола состоит из трёх слоёв – дощатого основания, ветрозащиты и утеплителя. Основанием выступают доски, уложенные с шагом 95-125 мм. Затем укладывается ветрозащитный материал, служащий надёжной преградой для внешнего холодного воздуха и влаги, при этом эффективно выводящий испарения из помещений. Верхний слой – базальтовая теплоизоляция.
Базовый утеплитель – экологически чистая базальтовая плита премиум класса Umatex Termo толщиной 200-250 мм (в зависимости от комплектации).
Между дощатым основанием и слоем утеплителя укладывается пароизоляция 200 мкр. Бесшовная пароизоляция дает возможность минимизировать количество стыков ограждающего дом пароизоляционного слоя.
Для основания чёрного пола используется экспортная строганая доска камерной сушки собственного производства. Особая форма доски «soft angle» увеличивает её стойкость к возгоранию. Доски сечением 145х45 мм монтируются с шагом 300 мм, что полностью исключает прогиб пола и способствует удобной разводке скрытых инженерных коммуникаций: отопление, электрика, водоснабжение.
Для перекрытия широких пролётов между этажами используются строганые клеёные балки больших сечений. Прочность и жёсткость балок целиком исключают вибрации и прогибы. Клеёные балки изготавливаются на нашем предприятии с эффективным контролем качества по технологии полного цикла, от камерной сушки пиломатериала, до запилов узлов сопряжения со стенами.
Балочная конструкция междуэтажных перекрытий небольших и средних по ширине пролётов выполняется из строганой доски камерной сушки с сечением 45х190мм. Доска производится на нашем предприятии по технологии полного цикла. Форма доски «soft angle» препятствует воспламенению и распространению огня.
В качестве несущей подосновы для тепло- и звукозащитного материала используется доска камерной сушки. Промежуточным слоем между обрешёткой и утеплителем размещается пароизоляция. Доска укладывается с шагом 400 мм, обеспечивая возможность скрытой прокладки в междуэтажном пространстве различных инженерных коммуникаций: труб, проводов и пр.
Базовый утеплитель – экологически чистая базальтовая плита премиум класса Paroc Extra толщиной 200 мм. – отличная шумоизоляция.
Для устройства чернового пола используется строганая доска камерной сушки сечением 145х45 мм с особой формой «soft angle», разработанной для усиления сопротивляемости горению. Доска производится специально для наших домов на собственном предприятии.
Металлочерепица с покрытием полиэстер, Толщина - 0,5мм
С внешней стороны стропильной конструкции под контробрешётку монтируется диффузионная (подкровельная) мембрана. Крайне важно правильно сориентировать полотно, разместить и проклеить стыки, тогда она надёжно защитит теплоизоляцию и дерево от влаги, будет эффективно выпускать наружу пар из помещений. Если этого не соблюсти, утеплитель испортится, древесина поразится грибком и плесенью, что чревато серьёзными издержками на ремонт.
Несущим основанием кровли выступают стропильные фермы, поддерживающие обрешётку. Фермы изготавливаются в режиме полного цикла из строганой доски камерной сушки «soft angle» в заводских условиях на нашем производстве с использованием металлических гвоздевых (зубчатых) пластин (МЗП). Конструкция тщательно просчитывается с учётом ширины пролётов до 20 м, снеговых и ветровых нагрузок, обладает высокой прочностью и жёсткостью.
Для фиксации подкровельной мембраны сверху и вдоль стропильных ног прибивается строганый повышающий брусок (контробрешётка) камерной сушки. Второй задачей бруска является образование вентилируемого зазора для удаления влаги из теплоизоляции. На контробрешётку крепится обрешётка. Весь пиломатериал изготавливается на нашем производстве.
Брусовая обрешётка предназначена для принятия на себя нагрузки от покрытия кровли, крепится перпендикулярно на контробрешётку. Шаг укладки обрешётки и сечение бруса выбираются в соответствии с типом кровельного покрытия. Как и в остальных случаях, брус для обрешётки производится из пиломатериала камерной сушки на нашем предприятии.
Для утепления кровельной конструкции используется экологически чистая, влаго- и огнестойкая, сохраняющая форму, шумоизолирующая базальтовая плита премиум класса Umatex Termo толщиной 200-400 мм. Плиты теплоизоляции укладываются между стропилами и покрываются подкровельной мембраной. Правильно уложенный утеплитель пропускают наружу влагу из помещений, но удерживает тепло, уменьшая затраты на отопление.
Лобовая доска является функциональным оформлением свесов кровли, крепится к торцам стропил оцинкованными гвоздями. Производится строганая доска на нашем предприятии из сухого высокосортного пиломатериала, обрабатывается специальной фрезой, изготовленной на заказ в Швеции. Для создания надёжного и красивого защитно-декоративного покрытия используется особый метод нанесения слоёв грунта и краски через определённые промежутки времени.
Для подшива нижней части карнизных свесов используется крашеная скандинавская доска камерной сушки. Этот элемент изготавливается на нашем предприятии в режиме полного цикла с применением фрезы особой формы, сделанной на заказ в Швеции. Важно, чтобы доска была долговечной и имела эстетичный внешний вид, поэтому мы контролируем весь процесс её производства и окраски от начала и до конца.
Залогом долгой службы водосточной системы является её грамотный монтаж. Эффективность системы зависит от множества деталей: материала и покрытия, правильного угла уклона в сторону воронок, надёжности крепления, плотности стыков, точности позиционирования желобов. Пропускной объём труб и желобов рассчитывается исходя из площади кровли.
Кровельные снегозадержатели – обязательный элемент наших домов. Важность их наличия объясняется опасностью копящейся на крыше снежной массы, которая при сходе может причинить серьёзный вред находящимся внизу людям, автомобилям, деревьям и кустарникам. Давление снега на водосточную систему способно вывести её из строя. Базовое предложение – снегозадержатели над крыльцом
В наши дома мы устанавливаем современные окна из качественного ПВХ-профиля REHAU DELIGH 70 мм или VEKA SOFTLINE 70 мм, снабжённые двухкамерными стеклопакетами с энергосберегающими стёклами. Нестандартный цвет, оформление рам, установка специальной фурнитуры, вентиляционных клапанов, согласовываются дополнительно.
Теплая временная дверь на этап чистовой отделки
Наружные доборы, наличники и отливы изготавливаются на нашем производстве по габаритам дверей и окон. Для уплотнения швов и стыков используется самоклеящаяся уплотнительная лента ПСУЛ, препятствующая протеканию воды. Водоотводные края отливов сгибаются под определённым углом, исключающим травмирование при случайном контакте.
Каркас внутренних перегородок – доска "soft angle" 45х95 мм экспортного качества камерной сушки строганая. Доска изготавливается полностью на нашем производстве. От сушилок до строжки и сборочной линии.
Для покраски фасада и уличных конструкций используется профессиональная краска для наружных работ, надёжно защищающая древесину от воздействия осадков, перепадов температур, ультрафиолета. В тёплое время года часть элементов окрашивается на месте установки, а другая часть – в заводских условиях, по схеме: грунт и два слоя краски. Соблюдение технологии нанесения обеспечивает длительный срок службы лакокрасочного покрытия.
Терраса – это лёгкая балочная конструкция с ограждением и дощатым настилом. Поскольку терраса эксплуатируется на улице, для её сооружения мы используем красивую, натуральную, экологически чистую импрегнированную доску. Материал отличается долговечностью, прочностью, износостойкостью, устойчив к повышенной влажности, перепадам температур, ультрафиолетовому излучению.
Устройство террасного ограждения требует особого подхода. Деревянная уличная конструкция должна безупречно противостоять атмосферным осадкам. При её проектировании мы используем финские разработки и технологии. Все элементы террасы производятся, обрабатываются и окрашиваются на нашем предприятии, после чего доставляются на место монтажа.
Срок по Договору составляет 2-6 месяцев с учетом фундамента и запуска инженерных систем.
10 лет
сроки
полного цикла
надзор
Состав проекта:
- Общие данные по рабочим чертежам;
- Трёхмерные виды, фасады, разрезы;
- Планы этажей, фундамента и экспликация помещений;
- План и развёртка кровли, схема водосточной системы и снегозадержания;
- Ведомость оконных блоков и наружных дверей;
- Схемы световых и розеточных сетей, схема вентиляции;
- Схема размещения междуэтажной лестницы (для двухэтажного дома).
Перевозка монтажного комплекта дома на участок заказчика в пределах Московской области в границах А108. Возможность и условия доставки в другие области, регионы, отдаленные и труднодоступные территории, требуют уточнений у менеджера отдела продаж.
Организация временных жилых и санитарно-гигиенических помещений для рабочих (бытовка, биотуалет, душ) в Московской области. Возможность и условия бытового обеспечения бригады в других регионах, а так же стоимость биотуалета при удалённости обслуживающего его сервиса, требуют уточнения в отделе продаж.
Обустройство открытых площадок для временного размещения строительных материалов и сборных конструкций, их разгрузка и складирование. При необходимости площадки оборудуются навесами для закрытого хранения некоторых групп материалов и оборудования, требующих защиты от атмосферных воздействий.
Организация вывоза строительного мусора на полигоны ТБО с участков, расположенных в Московской области. Возможность проведения работ в других регионах необходимо уточнить в отделе продаж. При удалённости служб, специализирующихся на вывозе мусора, стоимость данной услуги так же требует уточнения.
- Забивные железобетонные сваи 150х150 мм
- Отделка цоколя
Доска с оригинальным рисунком изготавливается на собственном предприятии при контроле качества на всех этапах производства. Для её создания используется фреза со специальным профилем, изготовленная на заказ в Швеции. Особая технология окраски с нанесением слоёв разной толщины и по определённым промежуткам времени существенно увеличивает срок службы защитно-декоративного покрытия.
Между фасадной доской и ветрозащитой оборудуется вентиляционный зазор. Вентилируемая воздушная прослойка препятствует переувлажнению стены паром, проникающим из помещений, обеспечивает нормальный влажностный режим стеновой конструкции и формирует благоприятный микроклимат в доме. Снизу вентиляционный зазор защищён сеткой от грызунов.
В качестве ветрозащиты и повышения жёсткости, используется ветрозащитная ветровлагозащитный гипсокартон GTS9. Он состоит из гипсового сердечника с гидрофобизаторами, покрыт специальным картоном повышенной плотности.
Изготовление конструкционной доски «soft angle» осуществляется на собственном производстве в режиме полного цикла, начиная с сушки, заканчивая строганием и запилами. На всех этапах технологического процесса качество изделий контролируется нашими специалистами. Особая форма доски «soft angle», препятствует возгоранию древесины.
Базовый утеплитель – экологически чистая базальтовая плита премиум класса Umatex Termo толщиной 200-250 мм. (в зависимости от комплектации)
Для защиты утеплителя кровли, стен, перекрытий от конденсата и намокания используется пароизоляция 200 мкр. Минимум стыков повышает эффективность парозащиты, обеспечивает высокую герметичность конструкции.

Внутренняя обшивка стен выполняется высокопрочными влагостойкими плитами Vetonit (Gyproc) Аква Стронг (ГСП-RH3) толщиной 15мм. Это уникальный экологичный материал в виде армированной гипсовой плиты облицованной картоном. Vetonit (Gyproc) Аква Стронг (ГСП-RH3) отличает стойкость к механическим нагрузкам и ударам, отличные звукоизолирующие свойства, высокая паропроницаемость, долговечность и идеально ровная поверхность, облегчающая покраску, наклейку обоев, укладку плитки и пр. Армирующие волокна плиты позволяют быстро и надёжно повесить полку или телевизор на обычные дюбели.
Силовой каркас перекрытия формируется из продольных и поперечных несущих балок специальной формы «soft angle», препятствующей возгоранию древесины и конструкции в целом. Доска изготавливается на нашем предприятии по технологии полного цикла, от камерной сушки пиломатериала, до финишной обработки и запилов. Качество продукции контролируется на всех этапах производства.
Конструктивно «пирог» чернового пола состоит из трёх слоёв – дощатого основания, ветрозащиты и утеплителя. Основанием выступают доски, уложенные с шагом 95-125 мм. Затем укладывается ветрозащитный материал, служащий надёжной преградой для внешнего холодного воздуха и влаги, при этом эффективно выводящий испарения из помещений. Верхний слой – базальтовая теплоизоляция.
Базовый утеплитель – экологически чистая базальтовая плита премиум класса Umatex Termo толщиной 200-250 мм. (в зависимости от комплектации)
Для защиты утеплителя кровли, стен, перекрытий от конденсата и намокания используется пароизоляция 200 мкр. Минимум стыков повышает эффективность парозащиты, обеспечивает высокую герметичность конструкции.
Для основания чёрного пола используется экспортная строганая доска камерной сушки собственного производства. Особая форма доски «soft angle» увеличивает её стойкость к возгоранию. Доски сечением 145х45 мм монтируются с шагом 300 мм, что полностью исключает прогиб пола и способствует удобной разводке скрытых инженерных коммуникаций: отопление, электрика, водоснабжение.
Для перекрытия широких пролётов между этажами используются строганые клеёные балки больших сечений. Прочность и жёсткость балок целиком исключают вибрации и прогибы. Клеёные балки изготавливаются на нашем предприятии с эффективным контролем качества по технологии полного цикла, от камерной сушки пиломатериала, до запилов узлов сопряжения со стенами.
Балочная конструкция междуэтажных перекрытий небольших и средних по ширине пролётов выполняется из строганой доски камерной сушки с сечением 45х190мм. Доска производится на нашем предприятии по технологии полного цикла. Форма доски «soft angle» препятствует воспламенению и распространению огня.
В качестве несущей подосновы для тепло- и звукозащитного материала используется доска камерной сушки. Промежуточным слоем между обрешёткой и утеплителем размещается пароизоляция. Доска укладывается с шагом 400 мм, обеспечивая возможность скрытой прокладки в междуэтажном пространстве различных инженерных коммуникаций: труб, проводов и пр.
Базовый утеплитель – экологически чистая базальтовая плита премиум класса Paroc Extra толщиной 200 мм. – отличная шумоизоляция.
Для устройства чернового пола используется строганая доска камерной сушки сечением 145х45 мм с особой формой «soft angle», разработанной для усиления сопротивляемости горению. Доска производится специально для наших домов на собственном предприятии.
Металлочерепица с покрытием полиэстер, Толщина - 0,5мм
С внешней стороны стропильной конструкции под контробрешётку монтируется диффузионная (подкровельная) мембрана. Крайне важно правильно сориентировать полотно, разместить и проклеить стыки, тогда она надёжно защитит теплоизоляцию и дерево от влаги, будет эффективно выпускать наружу пар из помещений. Если этого не соблюсти, утеплитель испортится, древесина поразится грибком и плесенью, что чревато серьёзными издержками на ремонт.
Несущим основанием кровли выступают стропильные фермы, поддерживающие обрешётку. Фермы изготавливаются в режиме полного цикла из строганой доски камерной сушки «soft angle» в заводских условиях на нашем производстве с использованием металлических гвоздевых (зубчатых) пластин (МЗП). Конструкция тщательно просчитывается с учётом ширины пролётов до 20 м, снеговых и ветровых нагрузок, обладает высокой прочностью и жёсткостью.
Для фиксации подкровельной мембраны сверху и вдоль стропильных ног прибивается строганый повышающий брусок (контробрешётка) камерной сушки. Второй задачей бруска является образование вентилируемого зазора для удаления влаги из теплоизоляции. На контробрешётку крепится обрешётка. Весь пиломатериал изготавливается на нашем производстве.
Брусовая обрешётка предназначена для принятия на себя нагрузки от покрытия кровли, крепится перпендикулярно на контробрешётку. Шаг укладки обрешётки и сечение бруса выбираются в соответствии с типом кровельного покрытия. Как и в остальных случаях, брус для обрешётки производится из пиломатериала камерной сушки на нашем предприятии.
Для утепления кровельной конструкции используется экологически чистая, влаго- и огнестойкая, сохраняющая форму, шумоизолирующая базальтовая плита премиум класса Umatex Termo толщиной 200-400 мм. Плиты теплоизоляции укладываются между стропилами и покрываются подкровельной мембраной. Правильно уложенный утеплитель пропускают наружу влагу из помещений, но удерживает тепло, уменьшая затраты на отопление.
Лобовая доска является функциональным оформлением свесов кровли, крепится к торцам стропил оцинкованными гвоздями. Производится строганая доска на нашем предприятии из сухого высокосортного пиломатериала, обрабатывается специальной фрезой, изготовленной на заказ в Швеции. Для создания надёжного и красивого защитно-декоративного покрытия используется особый метод нанесения слоёв грунта и краски через определённые промежутки времени.
Для подшива нижней части карнизных свесов используется крашеная скандинавская доска камерной сушки. Этот элемент изготавливается на нашем предприятии в режиме полного цикла с применением фрезы особой формы, сделанной на заказ в Швеции. Важно, чтобы доска была долговечной и имела эстетичный внешний вид, поэтому мы контролируем весь процесс её производства и окраски от начала и до конца.
Залогом долгой службы водосточной системы является её грамотный монтаж. Эффективность системы зависит от множества деталей: материала и покрытия, правильного угла уклона в сторону воронок, надёжности крепления, плотности стыков, точности позиционирования желобов. Пропускной объём труб и желобов рассчитывается исходя из площади кровли.
Кровельные снегозадержатели – обязательный элемент наших домов. Важность их наличия объясняется опасностью копящейся на крыше снежной массы, которая при сходе может причинить серьёзный вред находящимся внизу людям, автомобилям, деревьям и кустарникам. Давление снега на водосточную систему способно вывести её из строя. Базовое предложение – снегозадержатели над крыльцом
В наши дома мы устанавливаем современные окна из качественного ПВХ-профиля REHAU DELIGH 70 мм или VEKA SOFTLINE 70 мм, снабжённые двухкамерными стеклопакетами с энергосберегающими стёклами. Нестандартный цвет, оформление рам, установка специальной фурнитуры, вентиляционных клапанов, согласовываются дополнительно.
Теплая временная дверь на этап чистовой отделки
Самые тёплые входные двери – финские деревянные. Финские двери во много раз превосходят по тепло- и шумоизоляции металлические двери. Именно деревянные двери с различными видами отделки установлены на входе в большинство домов Финляндии. Рекомендуется установка на этапе финишной отделки.
Наружные доборы, наличники и отливы изготавливаются на нашем производстве по габаритам дверей и окон. Для уплотнения швов и стыков используется самоклеящаяся уплотнительная лента ПСУЛ, препятствующая протеканию воды. Водоотводные края отливов сгибаются под определённым углом, исключающим травмирование при случайном контакте.
Каркас внутренних перегородок – доска "soft angle" 45х95 мм экспортного качества камерной сушки строганая. Отделка внутренних стен - Гипсовая плита повышенной прочности Gyproc Аква Стронг 15мм. Доска изготавливается полностью на нашем производстве. От сушилок до строжки и сборочной линии. Стены поставляются в собранном виде с интегрированными гофрами для скрытой электропроводки.
Настил на полах под финишное покрытие устраивается из фанеры ФК 2/4. Уложенная на лаги сечением 145х45 мм с шагом 300 мм фанера толщиной 15 мм обеспечивает полам высокую жёсткость. Такие полы не требуют выравнивания, устойчивы к значительным вертикальным нагрузкам. Дополнительно, в зависимости от типа финишного покрытия требуется укладка второго слоя фанеры или ГВЛ с перекрытием швов нижнего слоя. Толщина второго слоя подбирается исходя из толщины финишного покрытия (ламинат, паркетная доска, плитка и др.)
Для покраски фасада и уличных конструкций используется профессиональная краска для наружных работ, надёжно защищающая древесину от воздействия осадков, перепадов температур, ультрафиолета. В тёплое время года часть элементов окрашивается на месте установки, а другая часть – в заводских условиях, по схеме: грунт и два слоя краски. Соблюдение технологии нанесения обеспечивает длительный срок службы лакокрасочного покрытия.
Терраса – это лёгкая балочная конструкция с ограждением и дощатым настилом. Поскольку терраса эксплуатируется на улице, для её сооружения мы используем красивую, натуральную, экологически чистую импрегнированную доску. Материал отличается долговечностью, прочностью, износостойкостью, устойчив к повышенной влажности, перепадам температур, ультрафиолетовому излучению.
Устройство террасного ограждения требует особого подхода. Деревянная уличная конструкция должна безупречно противостоять атмосферным осадкам. При её проектировании мы используем финские разработки и технологии. Все элементы террасы производятся, обрабатываются и окрашиваются на нашем предприятии, после чего доставляются на место монтажа.
Монтаж электросети выполняется скрытым способом. Проводка электрического кабеля осуществляется в гофрированных, не поддерживающих горение защитных гибких каналах (ПВХ-рукавах), которые монтируются на заводе. После возведения дома выполняется разводка кабеля от распределительного щита к подрозетникам, к местам установки светильников и пр.
Для организации внутридомовой электросети используется кабель ВВГнг-LS с медными жилами по ГОСТ. Индекс нг-LS в означает, что оболочка кабеля не распространяет горение, обладает низким дымо- и газовыделением. К розеткам подводится кабель 3х2,5 мм, для освещения – 3х1,5 мм, для мощных электроприборов – 3х4 мм. Количество розеток и выключателей мы ставим в избытке, учитывая размеры, назначение и планировку помещений.
Кабель локализуется путём укладки в гофрированный самозатухающий ПВХ рукав, не поддерживающий горение. В качестве мест соединений используются негорючие распаечные коробки, для подключения розеток и выключателей – подрозетники. Двойная защита кабеля – собственная изоляция и негорючие оболочки, обеспечивают высокий уровень пожарной безопасности дома.
Электрический щит оборудуется базовым набором автоматических выключателей. Это вводный автомат, устройства защитного отключения розеточных групп, линий на светильники. Объём щита позволяет в дальнейшем установить дополнительные автоматы для скважинного насоса, насоса для септика, электрического пола, откатных или подъемных ворот, уличного освещения и пр.
Монтаж розеток, выключателей, светорегуляторов (диммеров), светильников предлагаются в качестве опции. Заказать их установку лучше заранее, при заключении договора или на этапе чистовой отделки. Заказчик выбирает линейку электроустановочных изделий, а мы их монтируем. Подводку вводного кабеля так же желательно согласовать заблаговременно, это позволит сразу после сборки дома подключить отопительный котёл на постоянной основе.
Разводка трубопроводов отопительной системы выполняется внутри перекрытий пола и потолка. Трубы укладываются цельным куском, без стыков. Соединения есть только в коллекторном шкафу и в точке присоединения к радиатору. Подобное решение исключает риск скрытых протечек. Мы используем трубы из сшитого полиэтилена – это премиум материал с высоким классом надёжности.
В качестве отопительных приборов используются стальные панельные радиаторы. Это самые популярные батареи в мире, обладающие хорошей теплопроводностью, высокой мощностью теплового излучения, небольшой массой, прочностью и долговечностью, эстетичным внешним видом. Важным достоинством является низкая чувствительность к качеству теплоносителя.
Прокладка трубопроводов водоснабжения выполняется скрытым способом в перекрытии и открытым на стене. Мы используем надёжные трубы из сшитого полиэтилена , которые укладываются внутри пустот в перекрытиях, за фальшстенами из ГКЛ. Это решение сводит к минимуму возможность их механического повреждения. К местам подключения водоразборной арматуры обеспечивается доступ путём установки дверок.
Система внутренней канализации монтируется в доме под «ключ» с грамотно рассчитанными уклонами и выводом фанового стояка на кровлю. Противоположный конец трубы выводится за границу фундамента. Используются трубы и фитинги из полипропилена повышенной плотности с наружными диаметрами 50 мм и 110 мм, выдерживающие температуру бытовых стоков до 90 градусов.
В доме устанавливается разветвленная система воздуховодов общеобменой вентиляции с выводом на кровлю. Схема расположения каналов и расчёт их производительности выполняется архитектором на этапе проектирования. Система предназначена для вывода из дома отработанного воздуха, различных испарений. Для защиты от атмосферных осадков на трубы устанавливаются дефлекторы.
Для прохождения труб вентиляции и фанового стояка через кровельные конструкции используются специальные проходные элементы или короба с негорючим утеплителем. Монтаж коробов выполняется в перекрытиях и кровле с применением хомутов и кронштейнов. Место размещения проходных элементов рассчитывается конструкторами на этапе проектирования дома.
Базовое предложение предполагает установку в доме отопительного электрокотла мощностью 9 кВт или 14 кВт в зависимости от проекта. Для приготовления горячей воды устанавливается электрический бойлер объемом 150 л. В дальнейшем систему можно оснастить газовым котлом и бойлером косвенного нагрева, оставив электрокотёл в качестве резервного.
После завершения монтажа системы отопления и проведения наладочных работ, в систему заливается теплоноситель и выполняется пробный пуск котельной. Если к этому моменту к распределительному щиту уже подключён вводный кабель, котёл можно оставить работать на постоянной основе.
Сантехнические приборы устанавливаются в ванной комнате и туалете «под ключ» в случае заказа данной опции на этапе чистовой отделки. Это могут быть устройства любых типов, как традиционные напольные (приставные), так и настенные (рамные, каркасные) инсталляции. Сантехоборудование подключается к системам водоснабжения и канализации и готово к полноценной эксплуатации
Опционально предлагается монтаж приточно-вытяжной установки с рекуперацией тепла. Заказчику предоставляется несколько эффективных систем на выбор, различающихся классом и стоимостью. Вне зависимости от выбора, установка рекуператора позволит минимизировать издержки на отопление, создать комфортный и здоровый микроклимат в доме.
- Фундамент
- Стены Prefab полного заводского изготовления
- Кровля металлочерепица
- Окна, двери
- Внешняя отделка дома
- Оперативная служба сервиса в гарантийный и постгарантийный период
- Фундамент
- Стены Prefab полного заводского изготовления
- Кровля металлочерепица
- Окна, двери
- Внешняя отделка дома
- Оперативная служба сервиса в гарантийный и постгарантийный период
- Каркас внутренних перегородок
- Ограждения, террасная доска на крыльце и террасе
- Отделка цоколя
- Фундамент
- Стены Prefab полного заводского изготовления
- Кровля металлочерепица
- Окна, двери
- Внешняя отделка дома
- Оперативная служба сервиса в гарантийный и постгарантийный период
- Каркас внутренних перегородок
- Ограждения, террасная доска на крыльце и террасе
- Отделка цоколя
- Электрика «под ключ»
- Инженерные системы «под ключ» (котел, бойлер, радиаторы, вентиляция, ХВС, ГВС)
- Отделка стен гипсокартоном
- Система защиты от протечек
- Проверка дома независимой экспертизой с помощью Аэродвери





































